Direccion

Chiozza 1838 - San Bernardo

Telefono

(02257) 46-7924 / 63-9420 / 55-9210

Whatsapp

2257639420

Volver

Volver al listado

Oportunidad

BELLAVISTA I - Departamentos Amplios y Modernos - VENTA EN POZO

direccion Francisco De Las Carreras Y Montevideo, Mar De Ajó destacada Propiedad destacada

Venta

USD 43.000

Características
tipo Departamentos
ambiente 2 ambientes
dormitorio 1 dormitorio
baños 1 baño
cochera 1 cochera
anticipo y cuotas Anticipo y cuotas
permuta Acepta permuta
superficie Sup. total 45m2
disposicion Disposición Frente
orientacion Orientación Este
zonificacion Zonificación: CENTRO
antiguedad Antigüedad: En construcción
situacion Estado: Excelente
superficie Acepta mascotas
codigo Código V144
Acerca de la propiedad

INVERSION EN POZO!!

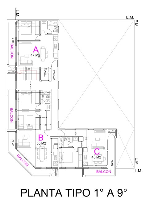
V144 - Edificio BELLAVISTA I de primera categoría, 27 departamentos distribuidos en 9 plantas, 9 cocheras y tres locales comerciales. Del primer al noveno piso encontramos por planta 3 unidades.
Con frente a la calle Montevideo se encolumnan departamentos de 45 m², de 2 ambientes compuestos de un amplio living, cocina-comedor, un dormitorio y un baño con antebaño y un balcon que lo rodea.
En la esquina se encolumnan departamentos 65 m² de 3 ambientes compuestos de un amplio living, cocina-comedor, dos dormitorios con placares y un baño con antebaño y un balcon hacia ambas calles.

Con frente a la calle Carreras se encolumnan departamentos de 47 m², de 2 ambientes compuestos de un amplio living, cocina-comedor, un dormitorio con placard y un baño con antebaño y un balcon en todo su ancho.
Muy buen diseño arquitectónico. Muy luminosos. Los departamentos se entregarán de la siguiente manera: mesada, bajo mesada, cocina eléctrica, termotanque eléctrico, sanitarios Capea, griferías FV, cañerias en termofusión, pisos de porcelanato, aberturas Modena, Revestimientos en Revear.


«Memoria descriptiva de obra Locales comerciales y Vivienda multifamiliar - Esquina Montevideo y Carreras - Mar de Ajo - P do. de la costa»
Locales Comerciales:
1). - Fundaciones y Estructura resistente en Hormigón Armado: Excavación de cimientos. Armado de estructura de hierro según calculo. Bases de fundación, tronco, vigas encadenado, columnas y losas con Hormigón H21, según cálculo.
 2). - Mamposterías: ladrillo hueco 12x18x33 en exterior y ladrillo hueco 8x18x33 según planos.
3). - Contra pisos y carpeta: sistema tradicional.
4). - Revoques: a la cal tradicional.
5). - Pisos y Revestimientos: cerámico según corresponda.
6). - Carpintería de Aluminio:(cerramientos): Módena con vidrio de 4 mm
7). - Carpintería de Madera:(puertas p lacas): interiores en línea estándar.
8). - Instalaciones Sanitarias: cañería de agua fría/caliente en termo fusión con diámetros según cálculo. Inodoro capea/ferrum y grifería fv.
9). - Instalación desagüe cloacal: awaduc t, con sus respectivas ventilaciones y cámaras según planos.
10). - Instalación Eléctrica: cableado con dimensiones según calculo, con circuitos separados, con sus respetivos tableros seccionales.
11). - Pintura general: fijador y aplicación de látex anti hongo.
12). - Acabado exterior: aplicación de revestimiento plástico, según fachada. (tarquini)

Vivienda Multifamiliar:

1). - Fundaciones y Estructura resistente en Hormigón Armado: Excavación de cimientos. Armado de estructura de hierro según calculo. Bases de fundación, tronco, vigas encadenado, columnas y losas con Hormigón H21, según cálculo.
2). - Mamposterías: ladrillo hueco 18x18x33 en exterior y ladrillo hueco 8/12x18x33 según planos. 3). - Contra pisos y carpeta: sistema tradicional.
4). - Revoques: a la cal tradicional.
5). - Pisos y Revestimientos: cerámico y porcelanato según corresponda.
6). - Carpintería de Aluminio:(cerramientos): Módena blanco/negro con vidrio de 4 mm
7). - Carpintería de Madera:(puertas placas): interiores en línea estándar.
8) . - Instalaciones Sanitarias: cañería de agua fría/caliente en termo fusión con diámetros según cálculo. Inodoro, Bidet y Lavatorio capea/ferrum y grifería fv .
9). - Instalación desagüe cloacal: awaduct, con sus respectivas ventilaciones y cámaras según planos.
 10). - Instalación Eléctrica: cableado con dimensiones según calculo, con circuitos separados, con sus respetivos tableros seccionales.
11). - Amueblamientos: Bajo mesada en melanina 18 mm b lanco estándar. 12). - Artefactos: cocina y termo tanque eléctrico línea estándar.
12). - Mesada de Mármol
13). - Pintura general: terminación en Yeso aplicado, fijador y aplicación de látex anti hongo.
14). - Acabado exterior: aplicación de revestimiento plástico, según fachada. (tarquini)

VALORES:
COCHERAS: A PARTIR DE u$s 6.000.-
DEPARTAMENTOS: A PARTIR DE u$s 43.000.-
LOCALES: A PARTIR DE u$s 38.000.- 
FORMA DE PAGO:
30% AL BOLETO Y CUOTAS
ARMA TU PLAN !!

SE TOMAN PERMUTAS !!

FECHA DE ENTREGA DICIEMBRE 2027

 

Ubicación
Consultar por propiedad
Bellavista I - Departamentos Amplios Y Modernos - Venta En Pozo
Venta
USD 43.000

Comunicate con nosotros

error

error

error

error


Propiedades relacionadas
Chatea con nosotros situacion
contacto No dudes en contactarte con nosotros contacto
Whatsapp WHATSAPP telefono LLAMAR
Comunicate con nosotros

error

error

error

error